Despite being fully moveable, you can still expect all the great features of our regular cabins. High quality woods and building materials are used throughout. Sizeable at 8.5ft x 16.4ft there is room for everything you need. The walls are so substantial with a 2.7 inch thickness for great temperature regulation. Both roof and floor are formed from 0.8 inch thick boards for a sturdy finish.
Ask a question| Material | Natural certified Nordic pine/ Scandinavian spruce |
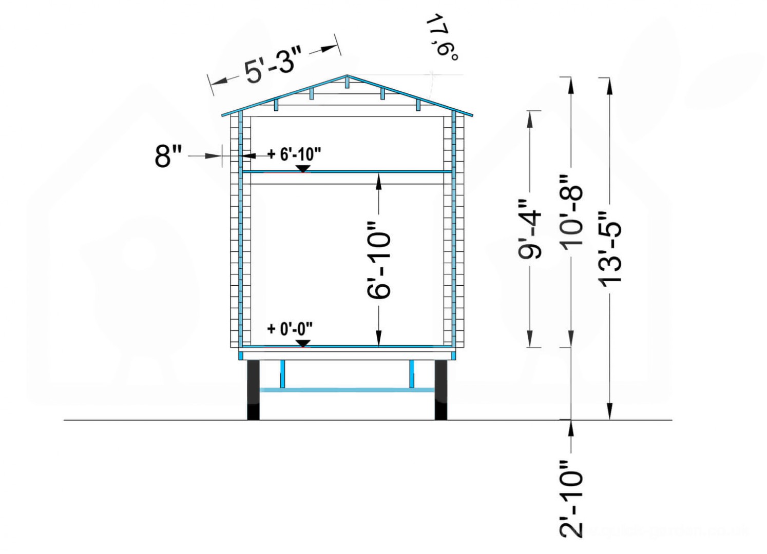
| External dimensions (width x depth) | 17'1" x 9'2" |
| Roof Material | 0.8" thick tongue & groove boards |
| Floor Material | 0.8" thick tongue & groove boards |
| Roof overhang | 8" |
| Number of rooms | 4 |
| Glazing | Double-Glazed |
| Roof Covering Material | Optional |
| Anti Rot Warranty | 10 Year |
You’ll receive a 10-year anti-rot warranty on all our wooden buildings. We make our wooden buildings exclusively from slow-grown conifer timber, distinguished by its much higher density in comparison with any other softwood. This feature makes it much more resistant to rot and mold, enabling us to confidently provide a 10-year anti-rot warranty (on the condition that the wood is maintained after construction).
We work diligently to help educate and advise our customers with issues related to our products and services. Please contact us if you need any information or help regarding our buildings, detailed plans, project sketches, installation, or for a general consultation. We are always happy to help!
(305) 260-6114
Mon – Fri, 8am – 5pm EST
|
Every single part is numbered We mark every single part of the building kit so you can easily find its place in the structure. |
|
Call for installation support & advice Please call us if you need any help or advice before, during, or after the installation of your wooden building. (305) 260-6114 |
| Fast shipping 10-15 working days shipping for all products in stock and 3-6 months for products not in stock. We will contact you in advance before delivering your order. |
| *Shipping cost on request |
|
Shipping to difficult to access areas Please inform us in advance if there are any special delivery considerations such as narrow roads, bridges, or road construction so we plan accordingly. |
| 20% | Place an order by paying just 20% of the total by credit card or bank transfer. | 80% | The remaining balance is then paid before or upon delivery by credit card or bank transfer. |
![]() |
Pay by a credit card or bank transfer. We accept credit card payments online. |




