2.7 inch thick walls ensures that this log cabin can be used during any season. Our standard windows and doors all come double glazed with finger joint technology, dramatically increasing their resistance to moisture and mold. You can personalize the look of your cabin by choosing the roof covering in red, dark green, or black.
Ask a question| Material | Natural certified Nordic pine/ Scandinavian spruce |
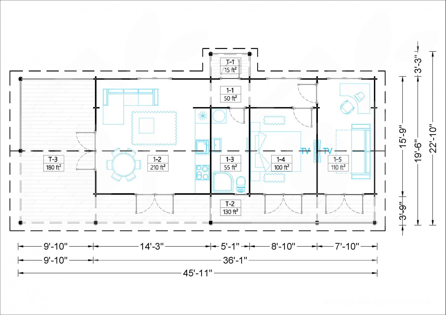
| Wall | 2.7" |
| Eaves height | 7'9" |
| Ridge height | 10' |
| Roof Material | 0.8" thick tongue & groove boards |
| Floor Material | 0.8" thick tongue & groove boards |
| Number of rooms | 4 |
| Glazing | Double-Glazed |
| Roof Covering Material | Optional |
| Anti Rot Warranty | 10 Year |
Better resistance to mold & rot
Pineca’s wooden sheds and buildings are made from slow-grown conifer timber. This type of timber has a greater density and a lower level of knots and sap. It is naturally better at protecting from rot and mold.
Reinforced roof construction
Safety has always been our highest priority; so all our buildings are designed with a reinforced roof construction developed to withstand strong winds and heavy loads.
Premium level windows and doors
Our log cabins come with double-glazed windows and doors that employ finger-joint technology that significantly reduces moisture in the building.
Secure locks & hinges
All our windows and doors are equipped with heavy-duty steel hinges that withstand up to 100,000 openings. Doors come with high-quality locks for optimal security.
Weatherstripping included
All windows and doors come standard with weatherstripping to prevent water and air leakage. The weatherstripping also allows the windows and doors to open and close smoothly.
Storm braces are standard
All of our wooden buildings are equipped with storm braces. Storm braces secure the walls with special wooden reinforcement bars. These bars make the whole structure more solid and add protection from wind and storms.
Change the opposite walls
Our wooden buildings are cleverly designed so you can easily swap the opposite walls during the construction process.
Tongue & groove flooring
Pineca’s wooden shed and buildings come with interlocking tongue & groove floorboards. This method joins our sturdy 0.8” thick floorboards firmly and evenly to minimize gaping.
Solid floor bearers
We use 2 x 2 inch thick, treated, wooden floor bearers for a solid base and improved longevity.
Hardware included
Our wooden building kits come with all the hardware necessary for installation (excluding basic tools): nails, screws, door locks and handles. Nails for the roof shingles are not included.
High quality glazing
We use high-quality, clear glass for our windows and doors. You will not find a cheap plastic alternative in any of our products.
Direct from the manufacturer
We offer you high-quality, solid wood buildings direct from our family-owned factory, founded in 1993. This way you avoid any middlemen and receive the product at manufacturer’s pricing.
You’ll receive a 10-year anti-rot warranty on all our wooden buildings. We make our wooden buildings exclusively from slow-grown conifer timber, distinguished by its much higher density in comparison with any other softwood. This feature makes it much more resistant to rot and mold, enabling us to confidently provide a 10-year anti-rot warranty (on the condition that the wood is maintained after construction).
We work diligently to help educate and advise our customers with issues related to our products and services. Please contact us if you need any information or help regarding our buildings, detailed plans, project sketches, installation, or for a general consultation. We are always happy to help!
(305) 260-6114
Mon – Fri, 8am – 5pm EST
|
Every single part is numbered We mark every single part of the building kit so you can easily find its place in the structure. |
|
Call for installation support & advice Please call us if you need any help or advice before, during, or after the installation of your wooden building. (305) 260-6114 |
| Fast shipping 10-15 working days shipping for all products in stock and 3-6 months for products not in stock. We will contact you in advance before delivering your order. |
| *Shipping cost on request |
|
Shipping to difficult to access areas Please inform us in advance if there are any special delivery considerations such as narrow roads, bridges, or road construction so we plan accordingly. |
| 20% | Place an order by paying just 20% of the total by credit card or bank transfer. | 80% | The remaining balance is then paid before or upon delivery by credit card or bank transfer. |
![]() |
Pay by a credit card or bank transfer. We accept credit card payments online. |









